info@a4grup.com.tr
0(266) 400 0266

Projeler

VADİ ALTINOLUK

Proje Detayları

VADİ ALTINOLUK

Devam Eden Projeler

Ruhsat Aşamasında Olan Projemiz Altınolukta Eşsiz Deniz Manzarasına Sahip, 6 Blok, 66 Konuttan Oluşmaktadır.

Proje Resimleri

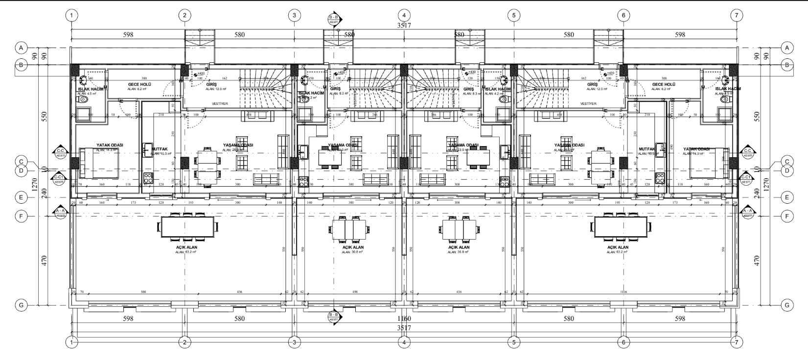
Kat Planları